Dota2竞猜平台·(中国)股份有限公司Dota2竞猜平台

「普通の設計」で木造ZEBを実現 ザイソウ正木ビル(前編)

 まずは断熱をしっかり施し、それで足りない部分は高効率な設備機器と太陽光発電などで補う。「ザイソウ正木ビル」は、住宅で使われる一般的な技術や材料を用いてZEB(ネット・ゼロ・エネルギー・ビル)を実現した。

 

 堀川のほとりにたたずむ在来木造の3階建て(延べ面積493m2)。2019年4月に完成した「ザイソウ正木ビル」(名古屋市中区)は、アットホームな雰囲気を漂わせているオフィスだ。入り口に続く磁器タイル張りのホールまでが下足エリアで、その先の応接室や事務室のエリアには靴を脱いで上がる。ホールは3層吹き抜けになっていて、天井と階段室の壁に施したCLT(直交集成板)の木目が温かな印象を与える

 


ザイソウ正木ビルの東外観。西側に堀川が流れる(写真:材惣DMBホールディングス)

 


ザイソウ正木ビルの1階ホール。入り口に直結し、3層吹き抜けの打ち合わせスペースになっている(写真:材惣DMBホールディングス)

 

 住宅と同じ一般的な技術と材料を用いて、年間の1次エネルギー消費量が正味ゼロまたはマイナスとなる「ZEB(ネット・ゼロ・エネルギー・ビル)」とした。

 

 建築主の材惣DMBホールディングス(名古屋市中区)は、木材事業を軸とする12のグループ会社を束ねる。この建物に入居するザイソウハウスは、グループ内の建設会社だ。

 

 「今後、グループとして木造の非住宅分野にも力を入れていくという意思を体現させた。環境配慮や脱炭素社会を目指していく世界の流れのなか、木造建築やZEBを身近に感じてもらえる建物をと考えた」。材惣DMBホールディングスの鈴木興太郎常務取締役・事業統括本部副本部長は、建物の狙いをそう位置づける。

 

 屋根の全面に23.7kWの太陽光発電パネルを並べた。創エネを含めた1次エネルギー消費量(その他エネルギー消費量を含まず)の削減率は101%、創エネを除いた削減率は60%だ。同時に、BCP対策として12kWの蓄電池を設置。各階に1カ所ずつ非常時のコンセントを設け、停電時には携帯電話への充電などに対応できるようにしている。

 


3階平面図(資料:加藤設計)

 


2階平面図(資料:加藤設計)

 


1階平面図(資料:加藤設計)

 

 ZEBシリーズで最も高性能な「正味のZEB」は、計画の早い時点から目標に掲げた。コストのかかる特別な手法は使っていない。ただし普及し得る建物を目指して、CLT以外は一般的な流通材や市販製品を組み合わせた。設計を担当した加藤設計(名古屋市東区)の河辺浩幸第1設計室室長は、「ZEB化に当たっての考え方もごく基本的なものだ」と話す。

 

 「第1に、断熱をしっかり施す。名古屋市は比較的温暖な地域(省エネ地域区分6地域)だが、せっかくなら寒冷地レベルの断熱性能を確保したいと考え、北海道(同1地域)の木造住宅を参考に断熱仕様を設定した。第2に、エアコン、換気、照明などの設備機器を高効率な製品に置き換えて、断熱だけでは足りない分をカバーする。最後に、さらに足りない部分を太陽光発電などの創エネで補う」

 

 屋根の断熱には、厚さ250mmのポリスチレンフォームを敷き詰めた。外壁は、厚さ120mmのグラスウールによる充填断熱と厚さ50mmのポリスチレンフォームの外張り断熱を組み合わせた。

 

 ほとんどの窓には、一般のビル用サッシに比べて断熱性能の高い住宅用の樹脂サッシを用いた。ガラスはアルゴンガス入りのLow-Eトリプルガラスだ(一部複層ガラス )。吹き抜けホールの大開口だけはビル用アルミサッシとしたが、断熱タイプのサッシにLowーE複層ガラスを組み合わせてできるだけの断熱性を確保した。

 


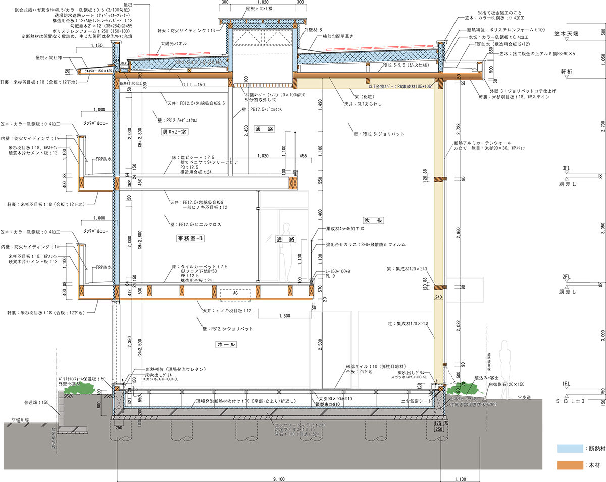
矩計図。屋根に厚さ250mmのポリスチレンフォーム、外壁に2重断熱を施したほか、基礎回りも「立ち上がりの外側」「立ち上がりの内側と基礎上」にそれぞれ断熱材を施工している(資料:加藤設計))

 


吹き抜けホールの大開口。断熱アルミサッシのカーテンウオールの内側に、造作で木の枠を取り付けた。右手の階段回りの壁にCLTを用いた(写真:材惣DMBホールディングス)

 

費用をかけず快適に

 

 空気循環の面でも工夫した。

 

 3層吹き抜けのホール上部には、重力換気による自然排熱用の窓を設けた。また室温を平準化させるために、吹き抜けの上部と1階の床面に空気の給排気口を設け、床下に置いた1台のファンで吹き抜け回りの空気を循環させている。夏は床面から冷たい空気を吸い込み上側で吹き出す。冬はファンの動きを逆転させ、上側で暖かい空気を吸い込み床下から吹き出す仕組みだ。

 

 建物内に取り入れる外気は、基礎断熱した床下にまず引き入れている。夏、室内に送り込む空気の温度を下げて、空調機の負荷を低減させるのが狙いだ。19年7月のある日のデータを見ると、外気温が30.3℃となり屋根の外表面は約45℃に上がったが、基礎内部はほぼ25℃と一定に保たれた。「費用をかけずに、外気温を5~8℃程度下げて室内に供給できている」(河辺氏)

 

 このほか、計画の目玉の1つとなったのがCLTの採用だ。屋根全面にCLTのパネルを敷き詰めたほか、ホールに面した階段回りに高さ約9mのCLT壁を設置した。

 

 CLTを使うとコストは高くなるが、木材を扱う企業グループとしての象徴的な意味合いがある。今回利用した環境省の補助金「ZEB実現に向けた先進的省エネルギー建築物実証事業」は、CLTの導入によって採択されやすくなるメリットもあった。また使用した15cm厚さのCLTの断熱性は、換算すると10kg品グラスウールの6cm程度の厚さに相当する。計算には組み込んでいないが、付加的な断熱効果も期待している。

 

 19年春に入居。夏を体験したが、エアコンなしでも室温が30℃を超えることはなかったという。

 

 光熱費の削減効果も大きい。以前入居していたビルでは、使用床面積313m2に対して18年6月の電気代が13万331円だった。新本社に移転した19年6月の電気代は、床面積が500m2近くに増えたにもかかわらず半分以下の6万1555円。目に見える効果を得ている。

 

 加藤設計は、年間を通じて躯体(くたい)の内外など各ポイントでの温度計測を続けている。断熱効果を数値で示すことで、運用の改善に結び付けるほか、今後の設計提案にも活用する。

 

ザイソウ正木ビルの建築概要データ

●所在地:名古屋市中区
●地域区分:6地域
●建物用途:事務所等
●構造・階数:木造・地上3階建て
●延べ面積: 493m2
●発注者:材惣DMBホールディングス
●設計者:加藤設計
●施工者:ザイソウハウス
●完成:2019年4月

 

(日経クロステック「省エネNext」公開のウェブ記事から抜粋)

 


これからの時代は企業として省エネ、創エネ、畜エネへの取り組みが求められます。グローバルのトップ企業トリナ・ソーラーの高品質で高パフォーマンスの製品の中から最適なパネルをお選びください。

     

    関連コンテンツ

ブログTOPはこちら 製品一覧はこちら
お問い合わせフォーム

関連する記事

Dota2竞猜平台